
Moderní srub v Kersku – domov mezi stromy
Úvod
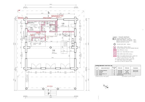
Představte si ráno, kdy první světlo prochází mezi duby a vůně smrkového dřeva vás zve do nového dne. Jen 20 minut od Prahy, na oploceném lesním pozemku 4 830 m², stojí srub o užitné ploše 156 m² a terasou 100 m² – dům, který přirozeně souzní s okolím a přitom nabízí komfort moderního bydlení.
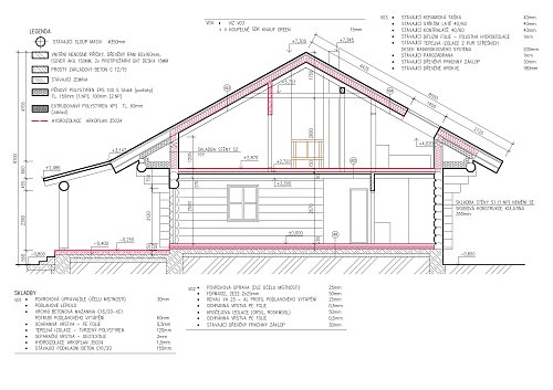
Postavený z kvalitního smrku (Srub.cz), pečlivě „usednutý“ po dobu dvou let a v 01/2024 zkolaudovaný jako rodinný dům s č.p..
Energetická třída B – maximum, kterého lze u srubových staveb dosáhnout.
Proč si ho zamilujete
Interiér, kde dřevo hraje prim
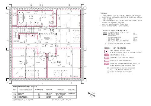
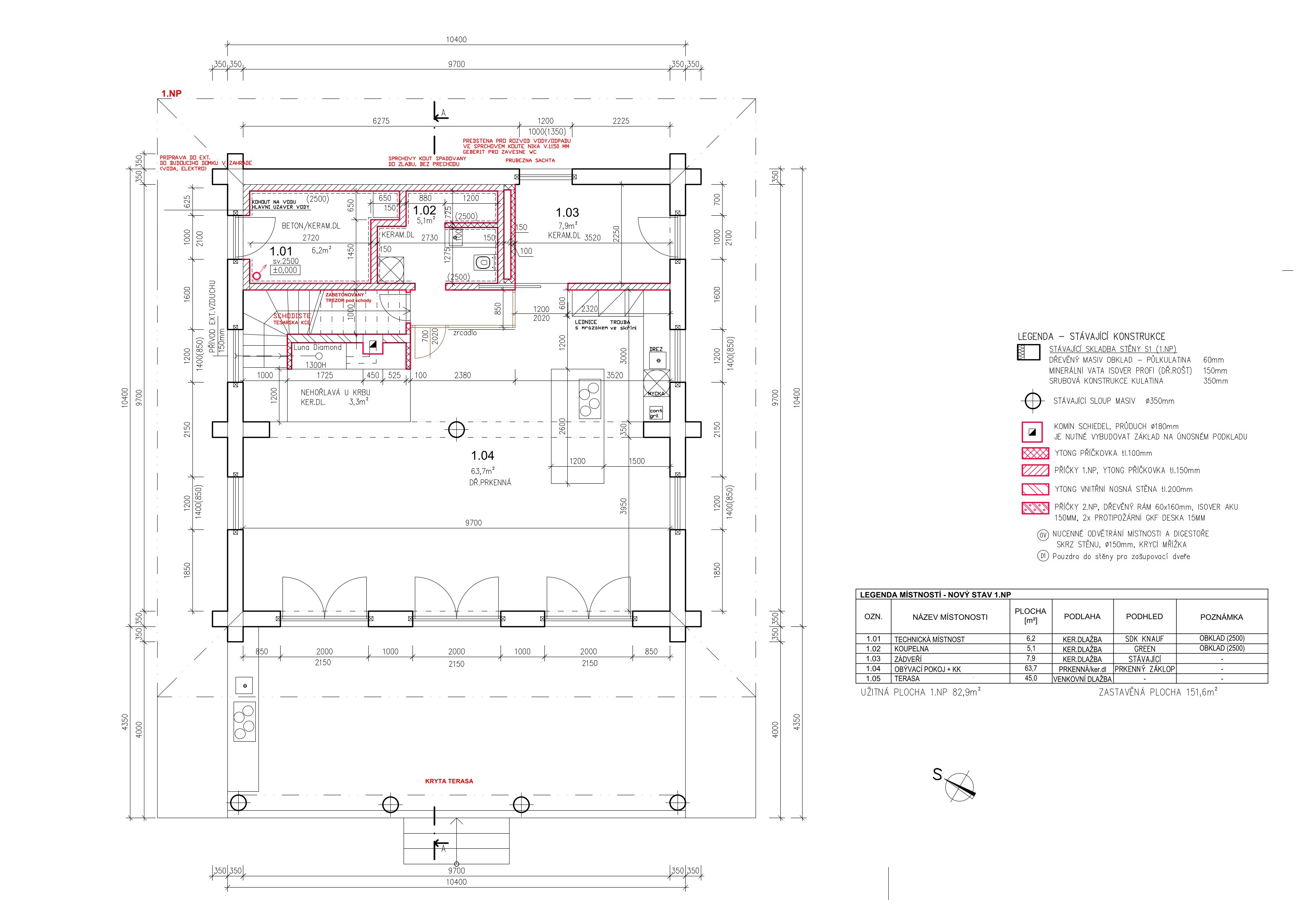
Vstupní hala s LED osvětlením a velkoformátovou dlažbou Atlas Concorde Kone White Mat 120×120 plynule vede do hlavního obytného prostoru 64 m².
V patře najdete dvě ložnice (cca 19 m²), atrium/pracovnu 27 m² (snadno upravitelné na 3. ložnici) a koupelnu s ikonickou vanou Kaldewei Conoduo 200×100 a WC.
Pozn.: Skutečné vnitřní plochy jsou místy o něco větší než v původním projektu.
Detaily, které dělají celek
Technika, na kterou je spoleh
Zahrada a okolí domu
Pozemek je mimo hlavní silnici, v oblasti bez záplav. Pečlivě upravené duby dávají místu charakter i stín; rododendrony, magnolie, tůje a smrky dotvářejí celoroční zeleň.
Nechybí ohniště, štěrková cesta, plachtový přístřešek, místo pro kompost a betonový základ připravený pro sportovní prvek.
Kersko – místo s příběhem
Hrabalova stezka, tři restaurace, lesní kavárna, tenisový klub, golf v dosahu, keramický ateliér Kuba. Do Kerska bez problémů jezdí Košík i pošta.
Dostupnost: Semice 4 min, Lysá n. L. 10 min, Sadská 10 min, Poděbrady 20 min, Nymburk 20 min, Čelákovice 15 min, Praha ~20 min.
Časová osa stavby
Pro koho je tento dům
Pro ty, kdo chtějí zdravé, nízkoenergetické a reprezentativní bydlení v přírodě, s velkým soukromím a rychlou dostupností do Prahy. Pro rodinu, která ocení přirozené materiály, kvalitní řemeslo a domov s atmosférou.
Informace k prohlídkám
Pro více informací a domluvení prohlídky mě kontaktujte.
Tento srub není jen nemovitostí – je to harmonické propojení přírody, moderní technologie a luxusu.
Cena: 22.500.000,- Kč